Call Us Valuation
Crafting home journeys with excellence!       info@noveproperty.co.uk       01845 407 047

Search Properties

Acorn Mews, South Otterington, DL7

South Otterington

£595,000 Guide Price

  • Bedroom Icon x 3
  • Bathroom Icon x 3
  • Bathroom Icon x 2
Department:
Sales
Reference:
ae4b406b-60b2-4009-b1a9-0b76c4988d3f
Postcode:
DL7 9HR
Type:
Detached House
Availability:
For Sale
Receptions:
2
Tenure:
Freehold

Property features

  • Build Contract Available
  • 3 Bed Detached Home
  • Newspan Construction

Details

We are thrilled to offer this fantastic opportunity to reserve your plot on a bespoke site being developed by Newspan Construction.

If you have ever dreamed of building your own home, this is your chance to work with one of the areas most respected developers to create your perfect property.

Plots are being offered for reservation. Full consultation over specification and design can be made with the developer.

Plot 3

This fantastic, detached, three bedroom property is set over three floors, with a bathroom/toilet on all floors.

Built with all the features of a Newspan creation, including Oak Porch, spacious living Kitchen and separate living room, this property will be constructed of Chatsworth Brick and Calderdale Dark grey roof tile for a premium feel.

South Otterington

The Village is named in the Domesday Book. The name is Old English after a person named Otter with “ton” meaning settlement. It is on the A167 and is part of the former Great North road from Boroughbridge to Northallerton.

The village with a population of 350 is 5 miles south of Northallerton on the east bank of the River Wiske.

The village is also home to a fine pub The Otterington Shorthorn, serving a great selection of home cooked food and real ale. It is a friendly yet charming pub with a warm and inviting atmosphere.

A fantastic primary School has its home in the Village which feeds into local secondary Schools including Thirsk, Northallerton, Ripon, Bedale, Queen Marys and Cundall Manor.

Transport Links

Sitting between Thirsk and Northallerton, access is easy for both Towns, each having a train station on the East Coast Mainline.

The Villages close proximity to the A1 and A19 allow commuters great access to all routes.

Materials Budget

The following budgets are offered within the purchase price and allow for you to choose your own kitchen and bathroom materials. Please note, this is materials only, at cost price with fitting included as part of the purchase price.

Kitchen £12,000

Bathrooms £3,000 each

Tiling £1500 each

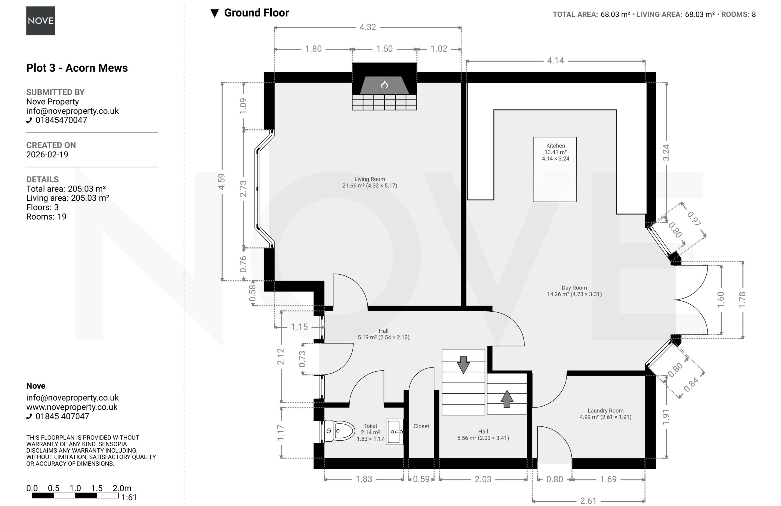
Entrance Hall
Accessed via a covered entrance with level threshold. A spacious reception hall with staircase rising to the first floor and access to principal ground floor rooms.

Lounge 15' 3" x 10' 10" (4.65m x 3.30m)
A generous front-facing reception room featuring a bay window (approx. 2.94m wide) providing excellent natural light. Well proportioned for family seating and entertainment.

Kitchen/Dining/Day Room 16' 7" x 14' 1" (5.05m x 4.30m)
Kitchen Area:
Approx. 3.30m x 3.00m (3m 30cm x 3m 00cm)
Designed to accommodate a central island with services. Ample space for contemporary fitted units and integrated appliances.
Day / Dining Area:
Approx. 4.30m x 3.25m (4m 30cm x 3m 25cm)
Open plan to the kitchen with bay window and double doors (approx. 2.94m wide overall) opening to the rear garden, creating an excellent family and entertaining space.

Utility Room 5' 11" x 4' 7" (1.80m x 1.40m)
Practical utility area with provision for washing appliances and additional storage.

Ground Floor W.C
Fitted with low level WC and wash basin of your choosing.

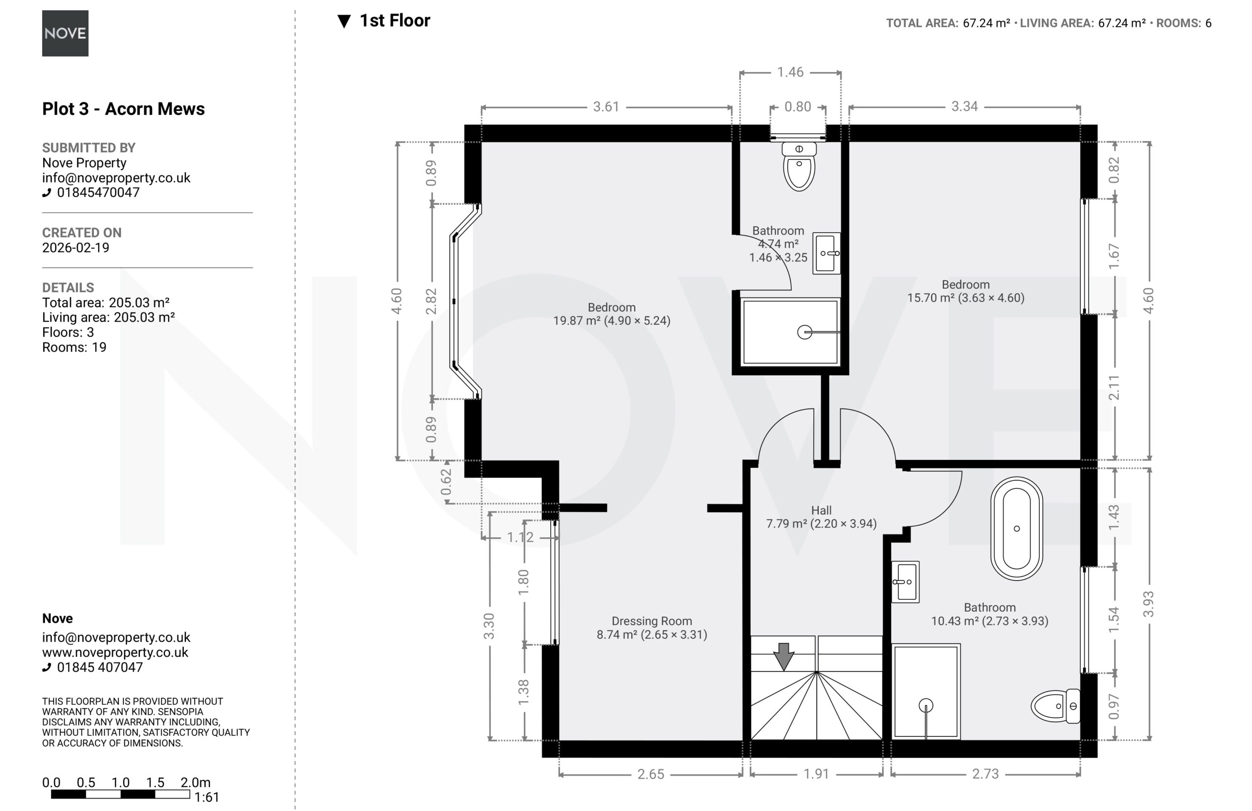
First Floor Landing
Central landing providing access to three rooms and family bathroom.

Bedroom One 15' 7" x 10' 10" (4.75m x 3.30m)
A generous double bedroom positioned to the front elevation with an additional dressing area measuring 3.25m x 2.6m and an ensuite Shower room

Dressing Area 10' 8" x 8' 6" (3.25m x 2.60m)
Ample space for wardrobes and vanity areas, set off from the main bedroom.

Ensuite Shower Room 10' 5" x 4' 9" (3.17m x 1.45m)
the ensuite can be fitted with the suite and tiling of your choice.

Bedroom Two 12' 10" x 10' 6" (3.90m x 3.20m)
Well-proportioned double bedroom overlooking the rear garden.

Family Bathroom 12' 8" x 8' 5" (3.87m x 2.56m)
Planned to contain a freestanding bath, walk in shower area, basin and toilet, the bathroom can be chosen by the buyer to create a bespoke finish.

Second Floor Suite 14' 9" x 12' 4" (4.50m x 3.75m)
A spacious top floor principal bedroom with roof lights providing excellent natural light.

Ensuite 8' 6" x 6' 1" (2.60m x 1.85m)
Comprising shower enclosure, WC and wash basin of your choosing.

Eaves Storage
Additional boarded storage areas set within the roof space.

Floor Plans

Request Further Details

Or arrange a viewing

    Latest News & Updates

    How to Bleed Your Radiators 21st February Advice

    How to Bleed Your Radiators

    Eliminate Trapped Air for Optimal Radiator Performance Bleeding your radiators constitutes a vital aspect of preserving your heating system’s efficiency.…

    Read More
    How to Defrost Your Boiler's Condensate Pipe 2nd February Advice

    How to Defrost Your Boiler's Condensate Pipe

    Maintaining your boiler’s efficiency during the winter months is crucial, and understanding how to thaw your condensate pipe is a…

    Read More
    How to Repressurize Your Boiler 15th January Advice

    How to Repressurize Your Boiler

    Maintaining optimal pressure in your boiler is essential for its efficiency and longevity. One crucial aspect of boiler upkeep is…

    Read More