Hambleton Avenue, Thirsk, YO7
Thirsk
£180,000 Guide Price
Property features
- End-of-terrace home offered to the market for the first time in over fifty years
- Two reception rooms plus a full-width rear garden room
- Three bedrooms including two generous doubles
- Immaculately maintained gardens front and rear with established planting and ornamental fish pond
- Excellent potential to modernise and add value throughout
Details
Offered to the market for the first time in over fifty years, this well-proportioned end-of-terrace home occupies a generous plot on a popular residential avenue and presents an excellent opportunity for buyers seeking a property to make their own. With solid brick construction, a pantile roof, immaculately maintained gardens front and rear, two reception rooms, a sun room, three bedrooms and allocated parking, this property has been a much-loved family home and now awaits its next chapter.
Entrance Hall
Accessed via a recently fitted composite front door, the entrance hall provides access to the living room, dining room and staircase to the first floor.
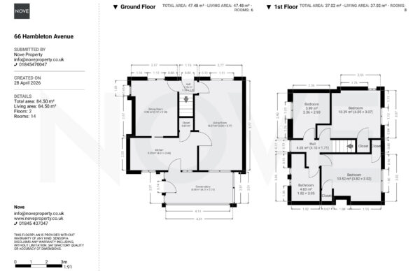
Living Room 18' 11" x 10' 0" (5.77m x 3.04m)
A comfortable and well-proportioned reception room with a stone fireplace and gas fire as its focal point. A window to the front looks out over the beautifully maintained garden.
Dining Room 9' 9" x 11' 9" (2.97m x 3.58m)
A generous separate dining room providing excellent everyday living space, with a second gas fire set within a tiled surround, built-in alcove shelving, and a glazed internal door leading through to the kitchen. Windows to the front and side of the property .
Kitchen 14' 2" x 8' 1" (4.31m x 2.46m)
A good-sized fitted kitchen with a range of oak-effect wall and base units, generous worktop space and tiled splashbacks. Freestanding cooker with double oven. Tiled floor throughout. Door to the rear garden room/utility. There is a large pantry cupboard under the stairs.
Garden Room/Utility 14' 2" x 6' 7" (4.31m x 2.01m)
A bright and spacious full-width addition to the rear of the property, with uPVC framed glazing on three sides, polycarbonate roof and direct access to the garden. Currently used as a utility space with plumbing for washing machine and space for fridge freezer, the garden room adds valuable additional square footage and provides a pleasant connection between the house and garden.
Bedroom One 13' 3" x 10' 1" (4.05m x 3.07m)
A well-proportioned double bedroom with two windows providing good natural light.
Bedroom Two 12' 6" x 9' 11" (3.82m x 3.02m)
A generous double bedroom retaining an original fireplace surround, giving the room real character.
Bedroom Three 9' 6" x 7' 9" (2.90m x 2.36m)
A single bedroom making excellent use of its proportions, with views to the rear.
Bathroom
Comprising bath with shower over and glazed screen, pedestal wash basin and WC. Fully tiled walls, window to the side and extractor fan.